lo studio
Architettura, Arte & Vino
i progetti
contatti
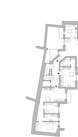
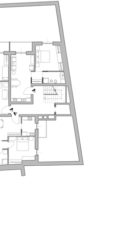
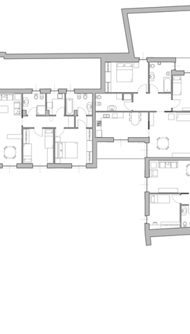
Moderno 31 . Casale Monferrato . residenze in fase di realizzazione . planimetria piano tipo